Ir al contenido
Skip to main content
Hit enter to search or ESC to close
Close Search
Lidia Echaniz
Menu
  • Sobre mí
  • Portfolio
  • Noticias
  • Contacto

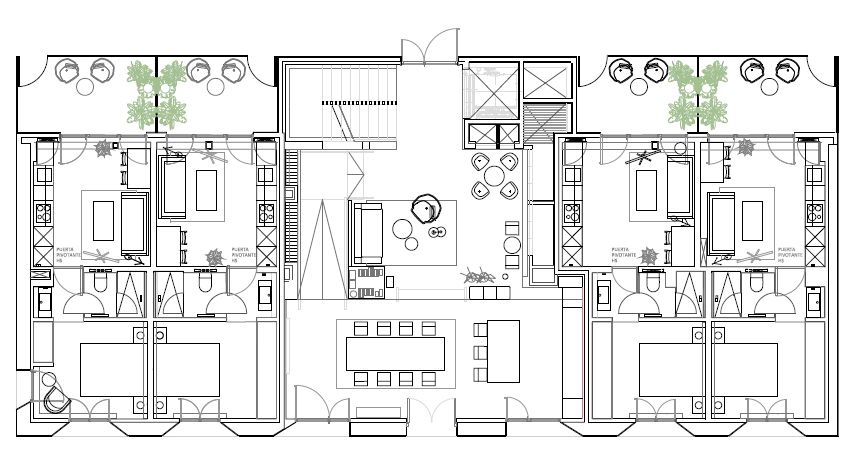
    Edificio Colomer I

    Unidades de apartamentos de 40m2

    22 apartamentos
    Presupuesto +1M€
    Sostenibilidad y comunidad

    Edificio Living

    – Materiales duraderos.
    – Telas Kvadrat: ecoresponsables y buena resistencia al uso.
    – Equipamientos Hospitality
    – Estilismo para fotografía

    • Previous Project
    • Next Project
    Share
    Share Share Share Pin

    info@lidiaechaniz.com

    Accesibilidad

    Política de privacidad

    Política de cookies

    Aviso Legal

    Financiado por la Unión Europea – NextGenerationEU

    © 2026 Lidia Echaniz. Todos los derechos reservados. Web diseñada por Matizart

    • linkedin
    Close Menu
    • Sobre mí
    • Portfolio
    • Noticias
    • Contacto
    • linkedin